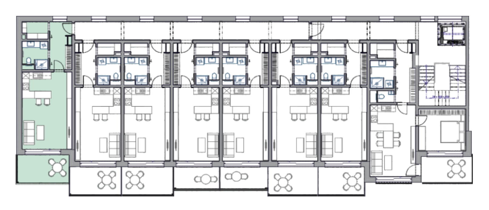
Výměry místností
01Chodba5,8 m²
02Šatna1,7 m²
03Koupelna + WC4,2 m²
04Obývací pokoj + kuchyně23,3 m²
Podlahová plocha35,7 m²
05Lodžie10,2 m²
Byt + Lodžie45,9 m²
3 398 640 Kč

Lze dokoupit:
Parkovací stání 504 000 Kč
Sklep 72 800 Kč

Poptat Byt A5.26 | 1+kk

Celým postupem koupě nového bytu vás rád provede

Petr Drozd

manažer prodeje