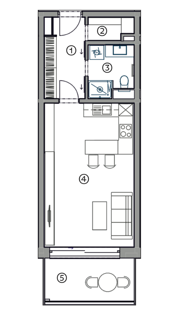
Výměry místností
01Chodba5,9 m²
02Šatna1,9 m²
03Koupelna + WC4,2 m²
04Obývací pokoj + kuchyně24,2 m²
Podlahová plocha37,0 m²
05Lodžie7,1 m²
Byt + Lodžie44,1 m²
3 420 648 Kč

Lze dokoupit:
Parkovací stání 504 000 Kč
Sklep 72 800 Kč

Poptat Byt A2.04 | 1+kk

Celým postupem koupě nového bytu vás rád provede

Petr Drozd

manažer prodeje