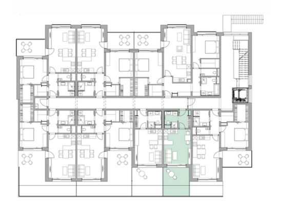
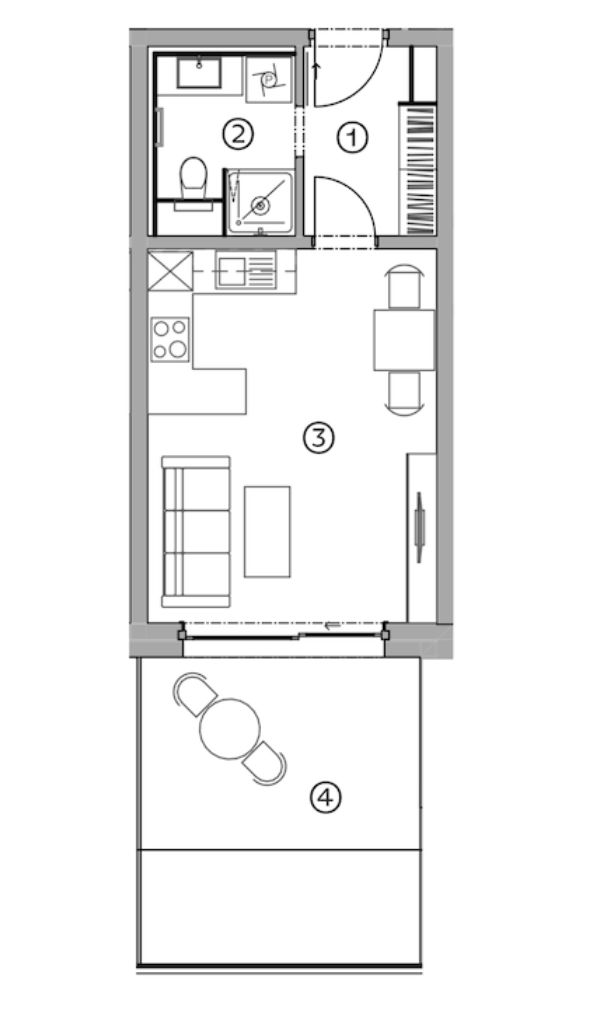
Výměry místností
01Chodba4,2 m²
02Koupelna + WC4,0 m²
03Obývací pokoj + kuchyně19,4 m²
Podlahová plocha28,6 m²
04Terasa15,2 m²
Byt + Terasa43,8 m²
3 298 142 Kč

Lze dokoupit:
Parkovací stání 504 000 Kč
Sklep 72 800 Kč

Poptat Byt B2.05 | 1+kk

Celým postupem koupě nového bytu vás rád provede

Petr Drozd

manažer prodeje