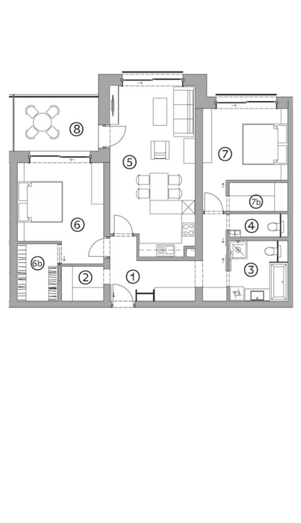
Výměry místností
01Chodba12,5 m²
02Šatna3,1 m²
03Koupelna6,3 m²
04WC2,3 m²
05Obývací pokoj + kuchyně28,3 m²
06Ložnice16,2 m²
06bŠatna4,7 m²
07Pokoj14,2 m²
07bŠatna3,3 m²
Podlahová plocha96,5 m²
08Lodžie8,8 m²
Byt + Lodžie105,3 m²
8 649 984 Kč

Lze dokoupit:
Parkovací stání 504 000 Kč
Sklep 72 800 Kč

Poptat Byt B2.03 | 3+kk

Celým postupem koupě nového bytu vás rád provede

Petr Drozd

manažer prodeje