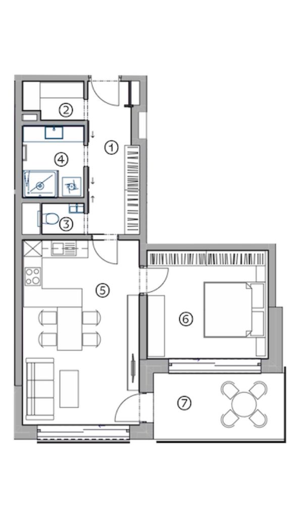
Výměry místností
01Chodba7,7 m²
02Šatna2,3 m²
03WC1,4 m²
04Koupelna4,6 m²
05Obývací pokoj + kuchyně23,1 m²
06Ložnice14,3 m²
Podlahová plocha54,7 m²
07Lodžie9,3 m²
Byt + Lodžie64,0 m²
5 205 536 Kč

Lze dokoupit:
Parkovací stání 504 000 Kč
Sklep 72 800 Kč

Poptat Byt A6.40 | 2+kk

Celým postupem koupě nového bytu vás rád provede

Petr Drozd

manažer prodeje