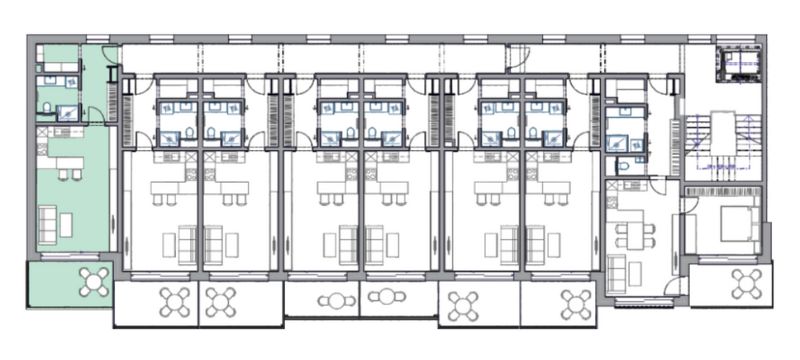
Výměry místností
01Chodba6,8 m²
02Šatna2,8 m²
03Koupelna + WC4,8 m²
04Obývací pokoj + kuchyně25,8 m²
Podlahová plocha40,7 m²
05Lodžie10,3 m²
Byt + Lodžie51,0 m²
3 695 026 Kč

Lze dokoupit:
Parkovací stání 504 000 Kč
Sklep 72 800 Kč

Poptat Byt A6.33 | 1+kk

Celým postupem koupě nového bytu vás rád provede

Petr Drozd

manažer prodeje